Mehr anzeigen zum Thema Ausstattung Beschreibung
Ausstattung Beschreibung
Modernisierungen
Im Jahr 2016 wurde umfangreich in die Aufwertung des Hauses investiert. Dabei wurden unter anderem das Dach vollständig erneuert und die oberste Etage sorgfältig gedämmt. Zudem erfolgte eine Erneuerung der Wasserleitungen sowie der gesamten Elektrik. Es erfolgten umfangreiche Maßnahmen, die das Haus technisch auf einen soliden Stand gebracht haben.
Heizungssystem
Komfort bieten zwei Klimaanlagen, die für angenehme Temperaturen in den Sommermonaten sorgen, sowie Fußbodenheizungen in allen Badezimmern. Zudem gibt es strombetriebene Heizkörper mit 200 W. Darüber hinaus sind aktuell keine weiteren Heizsysteme im Gebäude vorhanden.
Zusammenfassung
- Drei stöckiges Einfamilienhaus
- Insgesamte Wohnfläche: 155m²
- Grundstücksfläche: 780m²
- Garten in ruhiger Lage inkl. Pool, Zwei Garagen, Zwei Schuppen
Aktuelle Aufteilung der Wohnräume:
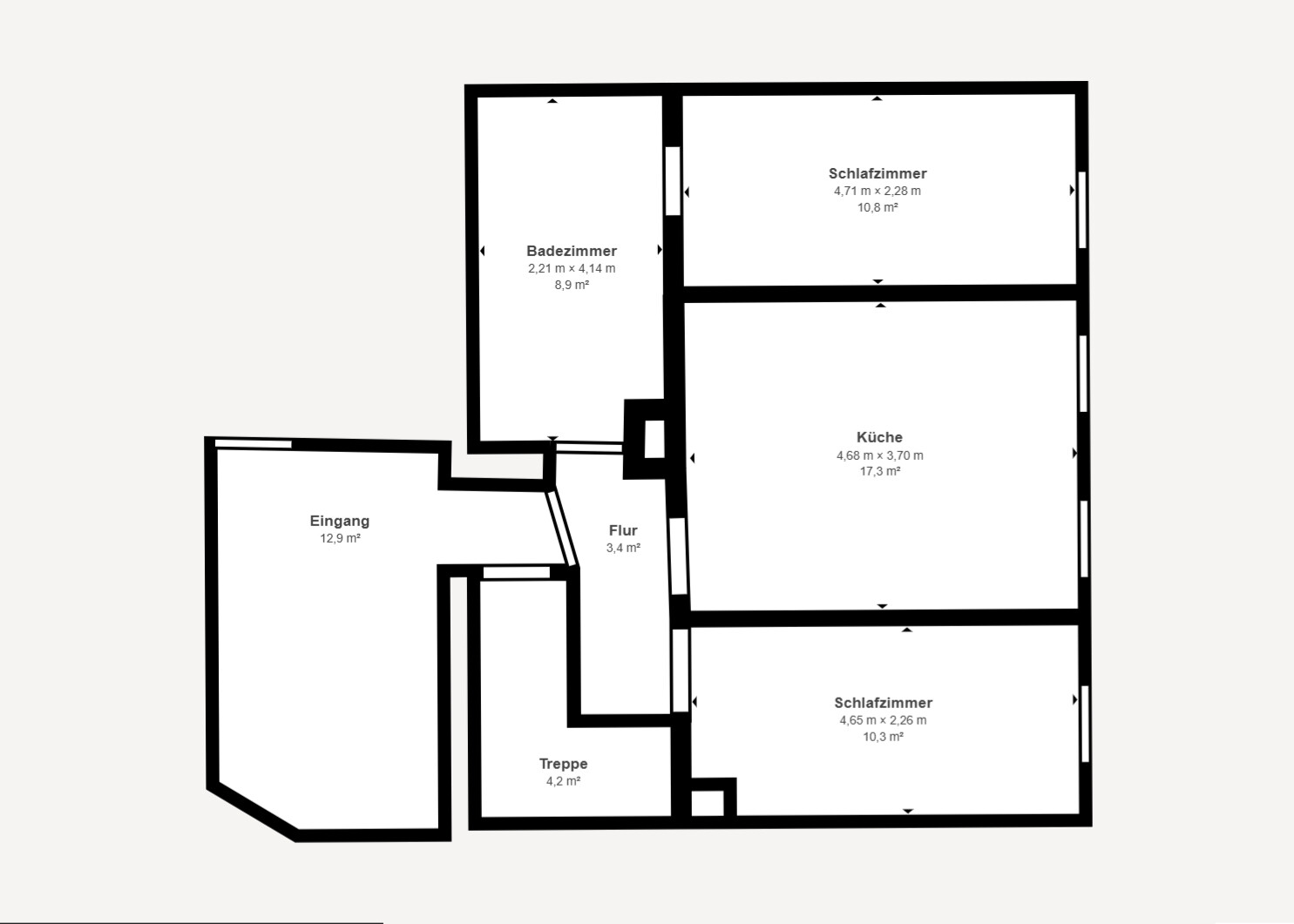
Erdgeschoss:
- Ein zusätzlicher Anbau dient als Eingang und bietet direkten Zugang zum Hinterhof
- Der größte Raum der Etage dient als Gemeinschaftsküche und Esszimmer für das ganze Haus
- Arbeitszimmer
- Schlafzimmer
- modernes Tageslichtbad mit Fußbodenheizung
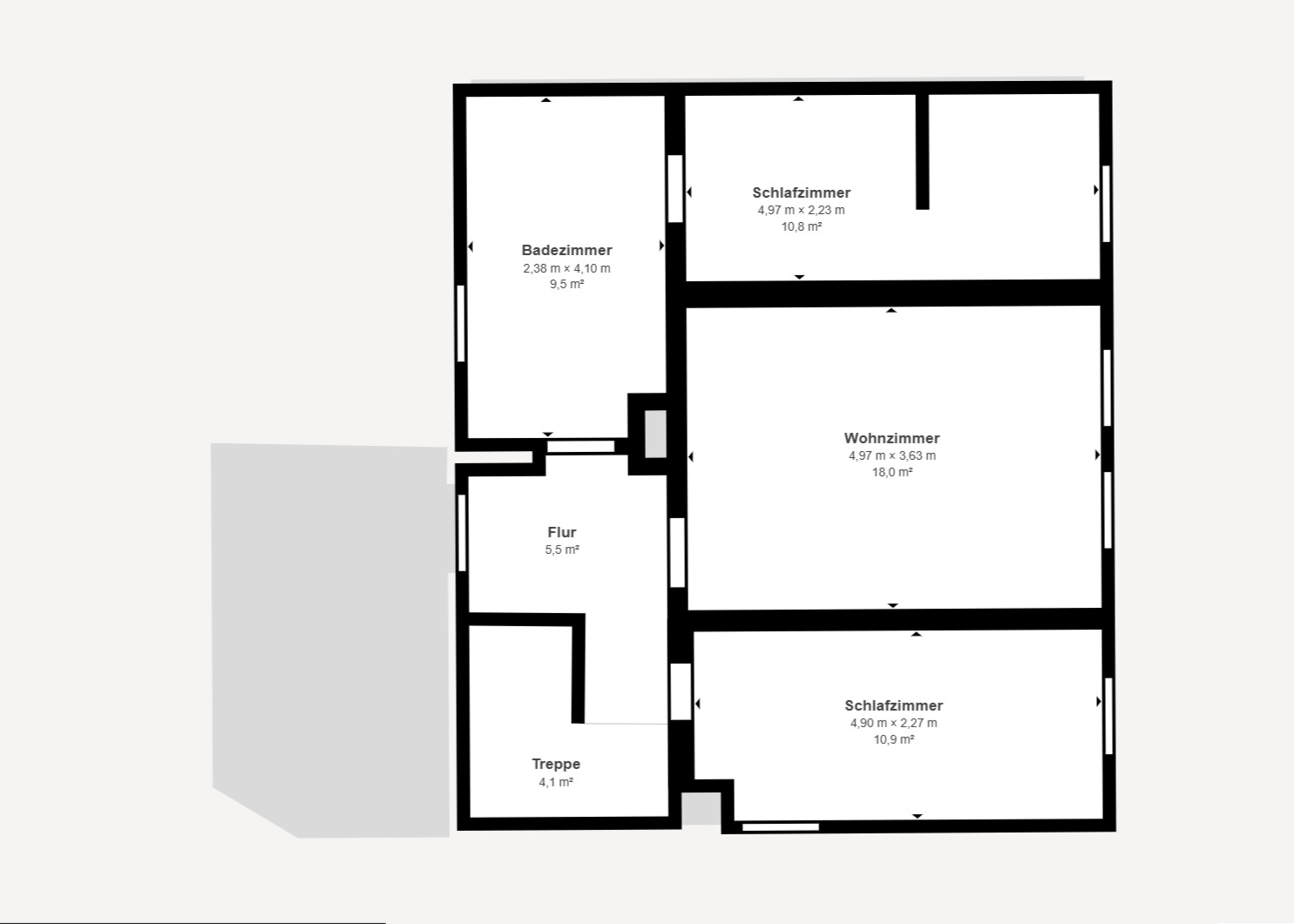
Erstes Obergeschoss:
- großes Schlafzimmer
- Ankleide oder Hobbyraum
- Arbeitszimmer
- modernes Tageslichtbad mit Fußbodenheizung
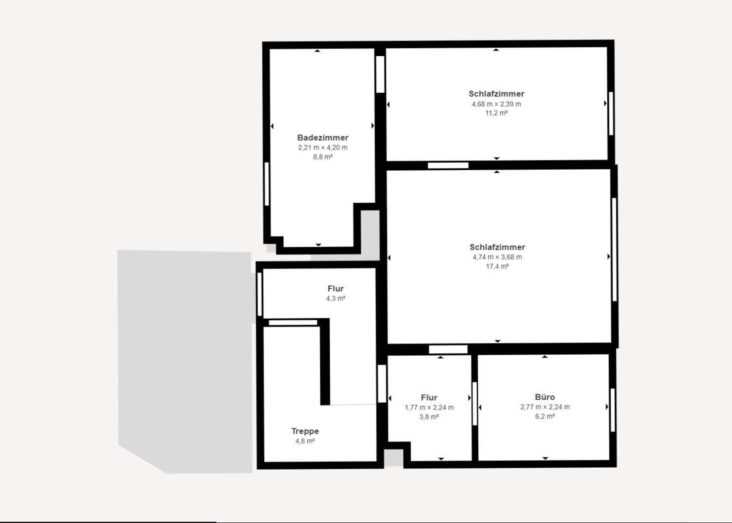
Zweites Obergeschoss/Dachgeschoss:
- Schlafzimmer
- Wohnzimmer
- Kinderzimmer
- modernes Tageslichtbad mit Fußbodenheizung
Im Jahr 2016 wurde umfangreich in die Aufwertung des Hauses investiert. Dabei wurden unter anderem das Dach vollständig erneuert und die oberste Etage sorgfältig gedämmt. Zudem erfolgte eine Erneuerung der Wasserleitungen sowie der gesamten Elektrik. Es erfolgten umfangreiche Maßnahmen, die das Haus technisch auf einen soliden Stand gebracht haben.
Heizungssystem
Komfort bieten zwei Klimaanlagen, die für angenehme Temperaturen in den Sommermonaten sorgen, sowie Fußbodenheizungen in allen Badezimmern. Zudem gibt es strombetriebene Heizkörper mit 200 W. Darüber hinaus sind aktuell keine weiteren Heizsysteme im Gebäude vorhanden.
Zusammenfassung
- Drei stöckiges Einfamilienhaus
- Insgesamte Wohnfläche: 155m²
- Grundstücksfläche: 780m²
- Garten in ruhiger Lage inkl. Pool, Zwei Garagen, Zwei Schuppen
Aktuelle Aufteilung der Wohnräume:
Erdgeschoss:
- Ein zusätzlicher Anbau dient als Eingang und bietet direkten Zugang zum Hinterhof
- Der größte Raum der Etage dient als Gemeinschaftsküche und Esszimmer für das ganze Haus
- Arbeitszimmer
- Schlafzimmer
- modernes Tageslichtbad mit Fußbodenheizung
Erstes Obergeschoss:
- großes Schlafzimmer
- Ankleide oder Hobbyraum
- Arbeitszimmer
- modernes Tageslichtbad mit Fußbodenheizung
Zweites Obergeschoss/Dachgeschoss:
- Schlafzimmer
- Wohnzimmer
- Kinderzimmer
- modernes Tageslichtbad mit Fußbodenheizung
Mehr anzeigen zum Thema Beschreibung
Beschreibung
GROßES EINFAMILIENHAUS
Dieses ursprünglich als Mehrfamilienhaus konzipierte Gebäude wurde von den aktuellen Eigentümern zu einem großzügigen Einfamilienhaus umgestaltet. Wo sich früher auf jeder Etage eigenständige Wohneinheiten befanden, sorgen heute offene Übergänge und ein gemeinsames Treppenhaus für ein durchgängiges Raumgefühl. Die Struktur ist nicht mehr auf getrennte Wohnungen ausgelegt, sondern auf ein harmonisches Zusammenleben über alle drei Ebenen hinweg – ideal für Familien, die viel Platz und flexible Nutzungsmöglichkeiten suchen.
MEHRGENERATIONEN- WOHNEN
Das Haus bietet optimale Bedingungen für ein Mehr- Generationen- Wohnen.
WOHNEN UND ARBEITEN
Auch für ein Konzept Wohnen und Arbeiten an einem Ort sind die Voraussetzungen perfekt.
RENDITEOBJEKT VERMIETUNG
Unabhängig davon ist es unkompliziert möglich, das Haus wiederum als 3 separate Wohnungen zu nutzen. Dafür spricht die Nähe zum Leipziger Messegelände und zu den großen Arbeitgebern BMW, Porsche, DHL im Norden Leipzigs.
Raumaufteilung
Mit einer Wohnfläche von insgesamt ca. 155 m² bietet das Haus auf jeder Etage ein vergleichbares Raumkonzept: Jeweils ein modernes, individuell gefliestes Tageslichtbad mit Badewanne, zwei eher schmal geschnittene Schlaf-, Arbeits- oder Kinderzimmer sowie ein großzügiges Wohnzimmer. Eine zentrale Küche befindet sich im Erdgeschoss und dient als gemeinsamer Treffpunkt für den Alltag.
Das Haus steht auf einem 780 m² großen Grundstück, das viel Raum zur freien Gestaltung bietet. Der Garten erstreckt sich zur ruhigeren Rückseite hin und umfasst unter anderem einen großen Pool – ein Rückzugsort mit Erholungsfaktor. Einen direkten Zugang zu Selbigem schafft ein Anbau im Erdgeschoss, welcher als Haupteingang dient. Eine etwa 15 Meter tiefe Wassersäule in Form eines Brunnens sorgt für eine zusätzliche Wasserquelle – ideal für die Gartenbewässerung oder den Poolbetrieb. KfZ- Stellplätze vor dem Haus, Garagen sowie zwei Schuppen, die sich z. B. auch als Werkstatt nutzen lassen, schaffen praktischen Stauraum für Hobbys, Technik oder Gartenbedarf.
Dieses Haus eignet sich ideal für Familien, die ein großzügiges Zuhause mit Entwicklungspotenzial suchen – sei es zum Wohnen, Arbeiten oder für das entspannte Leben im Grünen.
Dieses ursprünglich als Mehrfamilienhaus konzipierte Gebäude wurde von den aktuellen Eigentümern zu einem großzügigen Einfamilienhaus umgestaltet. Wo sich früher auf jeder Etage eigenständige Wohneinheiten befanden, sorgen heute offene Übergänge und ein gemeinsames Treppenhaus für ein durchgängiges Raumgefühl. Die Struktur ist nicht mehr auf getrennte Wohnungen ausgelegt, sondern auf ein harmonisches Zusammenleben über alle drei Ebenen hinweg – ideal für Familien, die viel Platz und flexible Nutzungsmöglichkeiten suchen.
MEHRGENERATIONEN- WOHNEN
Das Haus bietet optimale Bedingungen für ein Mehr- Generationen- Wohnen.
WOHNEN UND ARBEITEN
Auch für ein Konzept Wohnen und Arbeiten an einem Ort sind die Voraussetzungen perfekt.
RENDITEOBJEKT VERMIETUNG
Unabhängig davon ist es unkompliziert möglich, das Haus wiederum als 3 separate Wohnungen zu nutzen. Dafür spricht die Nähe zum Leipziger Messegelände und zu den großen Arbeitgebern BMW, Porsche, DHL im Norden Leipzigs.
Raumaufteilung
Mit einer Wohnfläche von insgesamt ca. 155 m² bietet das Haus auf jeder Etage ein vergleichbares Raumkonzept: Jeweils ein modernes, individuell gefliestes Tageslichtbad mit Badewanne, zwei eher schmal geschnittene Schlaf-, Arbeits- oder Kinderzimmer sowie ein großzügiges Wohnzimmer. Eine zentrale Küche befindet sich im Erdgeschoss und dient als gemeinsamer Treffpunkt für den Alltag.
Das Haus steht auf einem 780 m² großen Grundstück, das viel Raum zur freien Gestaltung bietet. Der Garten erstreckt sich zur ruhigeren Rückseite hin und umfasst unter anderem einen großen Pool – ein Rückzugsort mit Erholungsfaktor. Einen direkten Zugang zu Selbigem schafft ein Anbau im Erdgeschoss, welcher als Haupteingang dient. Eine etwa 15 Meter tiefe Wassersäule in Form eines Brunnens sorgt für eine zusätzliche Wasserquelle – ideal für die Gartenbewässerung oder den Poolbetrieb. KfZ- Stellplätze vor dem Haus, Garagen sowie zwei Schuppen, die sich z. B. auch als Werkstatt nutzen lassen, schaffen praktischen Stauraum für Hobbys, Technik oder Gartenbedarf.
Dieses Haus eignet sich ideal für Familien, die ein großzügiges Zuhause mit Entwicklungspotenzial suchen – sei es zum Wohnen, Arbeiten oder für das entspannte Leben im Grünen.
Mehr anzeigen zum Thema Lage
Lage
Das Haus liegt im nördlich gelegenen Leipziger Stadtteil Wiederitzsch – einem gewachsenen Wohnviertel, das für seine ruhige Lage und das angenehme Umfeld geschätzt wird. Gepflegte Einfamilienhäuser, kleine Spielplätze und viel Grün prägen das Straßenbild. Die Infrastruktur ist gut entwickelt: In der Umgebung befinden sich Kindertagesstätten, Schulen und Einkaufsmöglichkeiten, was den Alltag für Menschen mit einem aktiven Lebensstil besonders komfortabel macht. Auch das soziale Umfeld mit kurzen Wegen und nachbarschaftlichem Charakter trägt zur hohen Wohnqualität bei.
Die Verkehrsanbindung ist hervorragend: Über die nahegelegene Autobahn A14 sind sowohl das Leipziger Stadtzentrum als auch das Umland schnell zu erreichen. Auch die B6 sowie die Bundesstraße 2 bieten gute Anbindungen in alle Himmelsrichtungen. Wer lieber auf öffentliche Verkehrsmittel setzt, profitiert von den regelmäßigen Bus- , S- Bahn- und Straßenbahnverbindungen, mit denen man bequem ins Zentrum oder zu wichtigen Umsteigepunkten gelangt.
Für Erholung und Freizeit bietet die Umgebung eine Vielzahl an Möglichkeiten: Das grüne Umland rund um Wiederitzsch lädt zu ausgedehnten Spaziergängen, Fahrradtouren oder Familienausflügen ein. Besonders beliebt sind das Schladitzer Ufer mit Bademöglichkeit, Gastronomie, Wassersportangeboten und Spazierwegen sowie die naturnahen Flächen entlang der Neuen Luppe. Auch der nahe gelegene Auwald und der Zoologische Garten sind in kurzer Zeit erreichbar und bieten abwechslungsreiche Freizeitgestaltung für Groß und Klein.
Wiederitzsch ist damit ein Wohnort, der die Vorteile des städtischen Lebens mit der Nähe zur Natur verbindet – perfekt für Familien, die ein ruhiges, sicheres und dennoch gut angebundenes Zuhause suchen.
Die Verkehrsanbindung ist hervorragend: Über die nahegelegene Autobahn A14 sind sowohl das Leipziger Stadtzentrum als auch das Umland schnell zu erreichen. Auch die B6 sowie die Bundesstraße 2 bieten gute Anbindungen in alle Himmelsrichtungen. Wer lieber auf öffentliche Verkehrsmittel setzt, profitiert von den regelmäßigen Bus- , S- Bahn- und Straßenbahnverbindungen, mit denen man bequem ins Zentrum oder zu wichtigen Umsteigepunkten gelangt.
Für Erholung und Freizeit bietet die Umgebung eine Vielzahl an Möglichkeiten: Das grüne Umland rund um Wiederitzsch lädt zu ausgedehnten Spaziergängen, Fahrradtouren oder Familienausflügen ein. Besonders beliebt sind das Schladitzer Ufer mit Bademöglichkeit, Gastronomie, Wassersportangeboten und Spazierwegen sowie die naturnahen Flächen entlang der Neuen Luppe. Auch der nahe gelegene Auwald und der Zoologische Garten sind in kurzer Zeit erreichbar und bieten abwechslungsreiche Freizeitgestaltung für Groß und Klein.
Wiederitzsch ist damit ein Wohnort, der die Vorteile des städtischen Lebens mit der Nähe zur Natur verbindet – perfekt für Familien, die ein ruhiges, sicheres und dennoch gut angebundenes Zuhause suchen.
Mehr anzeigen zum Thema Sonstige Angaben
Sonstige Angaben
Das Haus wird nach dem Auszug der derzeitigen Eigentümer bezugsfrei übergeben und steht dem künftigen Käufer zeitnah zur Verfügung.
Unmöblierte Bilder dienen zur Veranschaulichung der Räumlichkeiten und können stellenweise vom Ist-Zustand abweichen. Die Ausmöblierung wurde mit Hilfe eines KI-Assistenten vorgenommen.
Unmöblierte Bilder dienen zur Veranschaulichung der Räumlichkeiten und können stellenweise vom Ist-Zustand abweichen. Die Ausmöblierung wurde mit Hilfe eines KI-Assistenten vorgenommen.
Mehr anzeigen zum Thema Sonstige Angaben
Energieausweis
- Nutzungsart
- Wohnen
Ihre Ansprechpartnerin
Frau Dorothee Stüker
Wohnsitz LE GmbH
- Tel.:
- +49 341 87085938
- E-Mail:
- ds@wohnsitz-le.de
Lauchstädter Str. 51
04229 Leipzig