Mehr anzeigen zum Thema Ausstattung Beschreibung
Ausstattung Beschreibung
Sanierungsbedürftige Doppelhaushälfte am ruhigen Stadtrand von Halle (Saale)
Ca. 96 m² Wohnfläche auf Erdgeschoss, Dachgeschoss und Keller
794m² Grundstückgröße
Baujahr: ca. 1919–1921
Massive Bauweise (36er Hohlwandmauerwerk)
Doppeltverglaste Kunststofffenster, Dach in gutem Zustand
4 Zimmer, 2 Badezimmer, vielseitige Grundrissgestaltung möglich
– Umbau zu einer offenen Wohnküche denkbar
Laminatboden und PVC in Wohnräumen und Fluren Teilen vorhanden, Bäder gefliest
Badezimmer mit Eckbadewanne und Dusche, zusätzliches Badezimmer im Dachgeschoss mit Dusche
Nebengelasse: 2 Garagen, Werkstatt und weitere Abstellräume
Großzügiger, eingezäunter Garten mit Sitzgelegenheit und Grünflächen
Es besteht Instandhaltungs - und Sanierungsbedarf: insbesondere - Innenausbau (Böden, Innentüren, Oberflächen)
Ca. 96 m² Wohnfläche auf Erdgeschoss, Dachgeschoss und Keller
794m² Grundstückgröße
Baujahr: ca. 1919–1921
Massive Bauweise (36er Hohlwandmauerwerk)
Doppeltverglaste Kunststofffenster, Dach in gutem Zustand
4 Zimmer, 2 Badezimmer, vielseitige Grundrissgestaltung möglich
– Umbau zu einer offenen Wohnküche denkbar
Laminatboden und PVC in Wohnräumen und Fluren Teilen vorhanden, Bäder gefliest
Badezimmer mit Eckbadewanne und Dusche, zusätzliches Badezimmer im Dachgeschoss mit Dusche
Nebengelasse: 2 Garagen, Werkstatt und weitere Abstellräume
Großzügiger, eingezäunter Garten mit Sitzgelegenheit und Grünflächen
Es besteht Instandhaltungs - und Sanierungsbedarf: insbesondere - Innenausbau (Böden, Innentüren, Oberflächen)
Mehr anzeigen zum Thema Beschreibung
Beschreibung
Verträumte sanierungsbedürftige Doppelhaushälfte mit großzügigem Garten und idealer Anbindung zur S-Bahn-Haltestelle am ruhigen Stadtrand von Halle (Saale).
Die um 1920 errichtete Doppelhaushälfte mit ca. 96 m² Wohnfläche befindet sich am ruhigen Stadtrand von Halle (Saale). Mit einer Grundstücksgröße von 794m² bietet dieses Objekt wunderbare Möglichkeiten, um eigene Träume und Wünsche zu verwirklichen. Der großzügige eingezäunte Garten mit reichlich Grünflächen und Sitzmöglichkeiten lädt zum verweilen ein.
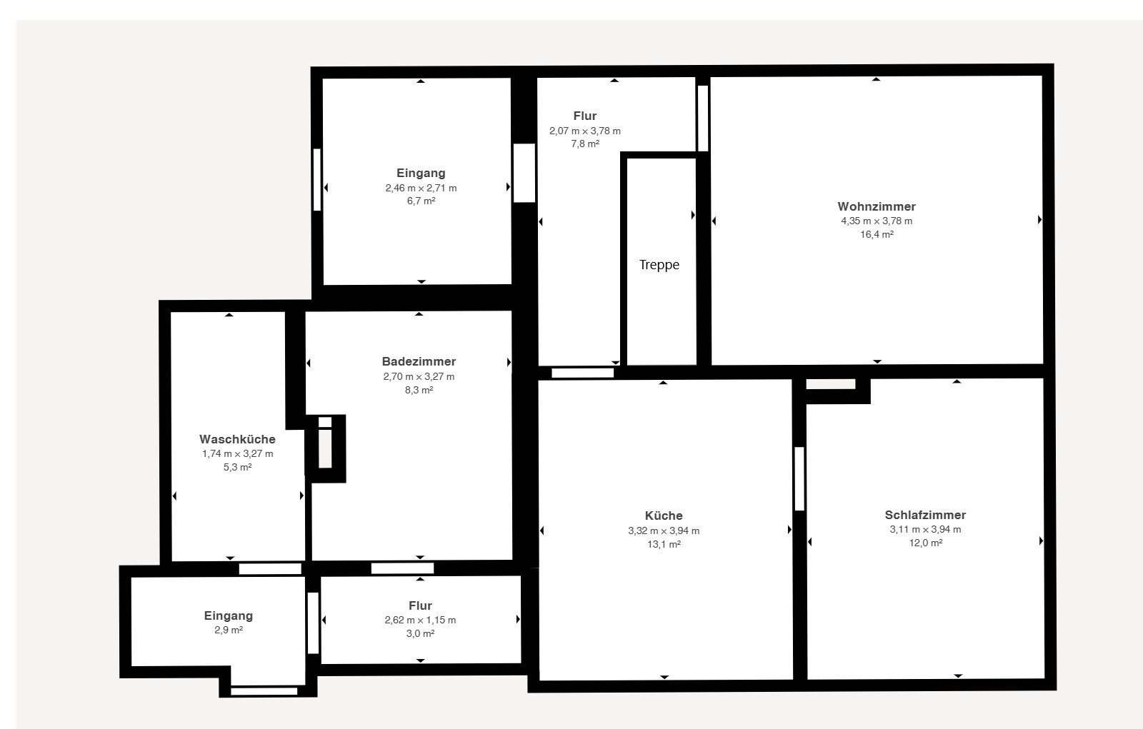
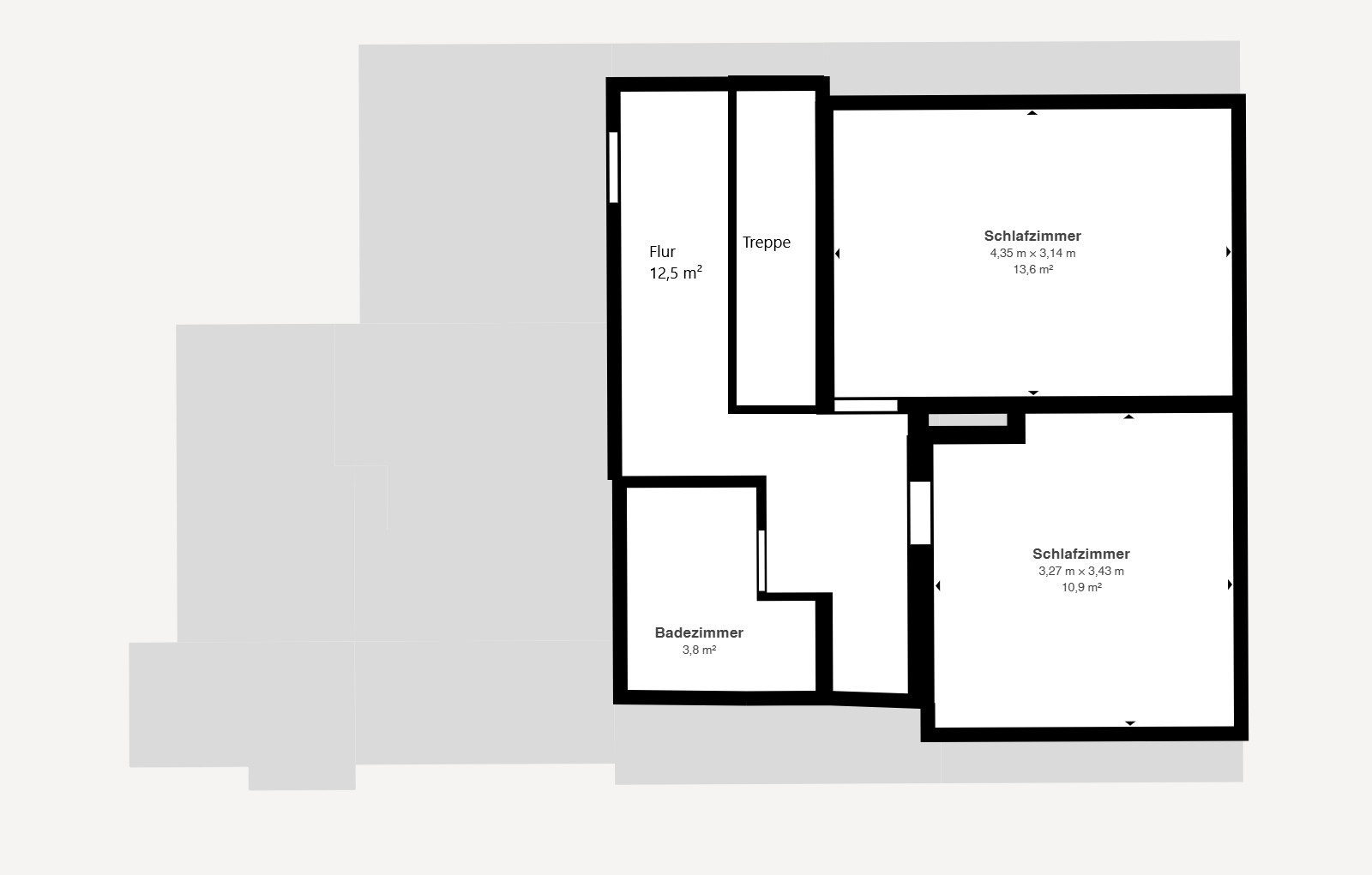
Die Doppelhaushälfte verfügt über Erdgeschoss, Dachgeschoss und Keller.
Im Erdgeschoss befindet sich der Eingangsbereich, ein Wohnzimmer, ein Schlafzimmer, eine Küche, ein Badezimmer, ein Flur sowie ein kleineres Zimmer, welches als hauswirtschaftsraum genutzt wurde, optional kann man diesen aber als Büro umfunktionieren. Das Dachgeschoss ist ausgestattet mit zwei weiteren Zimmern sowie einem Badezimmer. Zum Anwesen gehören 2 Garagen, eine Werkstatt sowie mehrere Nebengelasse, diese bieten vielseitige Nutzungsmöglichkeiten.
Das Gebäude wurde in massiver Bauweise errichtet (36er Hohlwandmauerwerk) und ist mit doppeltverglasten Kunststoffenstern ausgestattet. Dach und Fenster befinden sich in einem guten Zustand. Im Inneren sind Laminatböden und PVC teilweise in Wohnräumen und Fluren erhalten. Die Bäder sind gefliest.
Die Substanz des Hauses besteht in einem soliden Zustand, jedoch Sanierungsbedarf - und Modernisierungsbedarf besteht insbesondere im Innenausbau des Hauses.
Die um 1920 errichtete Doppelhaushälfte mit ca. 96 m² Wohnfläche befindet sich am ruhigen Stadtrand von Halle (Saale). Mit einer Grundstücksgröße von 794m² bietet dieses Objekt wunderbare Möglichkeiten, um eigene Träume und Wünsche zu verwirklichen. Der großzügige eingezäunte Garten mit reichlich Grünflächen und Sitzmöglichkeiten lädt zum verweilen ein.
Die Doppelhaushälfte verfügt über Erdgeschoss, Dachgeschoss und Keller.
Im Erdgeschoss befindet sich der Eingangsbereich, ein Wohnzimmer, ein Schlafzimmer, eine Küche, ein Badezimmer, ein Flur sowie ein kleineres Zimmer, welches als hauswirtschaftsraum genutzt wurde, optional kann man diesen aber als Büro umfunktionieren. Das Dachgeschoss ist ausgestattet mit zwei weiteren Zimmern sowie einem Badezimmer. Zum Anwesen gehören 2 Garagen, eine Werkstatt sowie mehrere Nebengelasse, diese bieten vielseitige Nutzungsmöglichkeiten.
Das Gebäude wurde in massiver Bauweise errichtet (36er Hohlwandmauerwerk) und ist mit doppeltverglasten Kunststoffenstern ausgestattet. Dach und Fenster befinden sich in einem guten Zustand. Im Inneren sind Laminatböden und PVC teilweise in Wohnräumen und Fluren erhalten. Die Bäder sind gefliest.
Die Substanz des Hauses besteht in einem soliden Zustand, jedoch Sanierungsbedarf - und Modernisierungsbedarf besteht insbesondere im Innenausbau des Hauses.
Mehr anzeigen zum Thema Lage
Lage
Diese großzügige Doppelhaushälfte befindet sich in einer idyllischen und ruhigen Wohnlage östlich des Stadtgebiets von Halle.
Trotz der naturnahen Umgebung überzeugt der Standort durch eine hervorragende Verkehrsanbindung. Über die B6 erreicht man das Stadtzentrum von Halle in wenigen Minuten, die Autobahn A14 sorgt zudem für eine schnelle Verbindung in Richtung Leipzig und Magdeburg. Eine S-Bahn-Haltestelle ist fußläufig in etwa 5 Minuten erreichbar.
Einkaufsmöglichkeiten des täglichen Bedarfs, Ärzte, Schulen und Kindertagesstätten befinden sich in kurzer Distanz. Besonders hervorzuheben ist die Nähe zur Messe Halle, einem der bedeutendsten Veranstaltungs- und Wirtschaftszentren Mitteldeutschlands. Diese bietet vielfältige Veranstaltungen und Messen.
Die Randlage zur Stadt sorgt für ein angenehmes, familienfreundliches Wohnumfeld mit wenig Verkehrslärm. In unmittelbarer Nähe befinden sich mehrere Seen und Teiche, darunter der Hufeisensee, der Osendorfer See und der Heidesee, diese laden zu Spaziergängen, Badeausflügen oder sportlichen Aktivitäten ein. Rad- und Wanderwege führen direkt ins grüne Umland und bieten abwechslungsreiche Freizeitmöglichkeiten für die ganze Familie.
Trotz der naturnahen Umgebung überzeugt der Standort durch eine hervorragende Verkehrsanbindung. Über die B6 erreicht man das Stadtzentrum von Halle in wenigen Minuten, die Autobahn A14 sorgt zudem für eine schnelle Verbindung in Richtung Leipzig und Magdeburg. Eine S-Bahn-Haltestelle ist fußläufig in etwa 5 Minuten erreichbar.
Einkaufsmöglichkeiten des täglichen Bedarfs, Ärzte, Schulen und Kindertagesstätten befinden sich in kurzer Distanz. Besonders hervorzuheben ist die Nähe zur Messe Halle, einem der bedeutendsten Veranstaltungs- und Wirtschaftszentren Mitteldeutschlands. Diese bietet vielfältige Veranstaltungen und Messen.
Die Randlage zur Stadt sorgt für ein angenehmes, familienfreundliches Wohnumfeld mit wenig Verkehrslärm. In unmittelbarer Nähe befinden sich mehrere Seen und Teiche, darunter der Hufeisensee, der Osendorfer See und der Heidesee, diese laden zu Spaziergängen, Badeausflügen oder sportlichen Aktivitäten ein. Rad- und Wanderwege führen direkt ins grüne Umland und bieten abwechslungsreiche Freizeitmöglichkeiten für die ganze Familie.
Mehr anzeigen zum Thema Sonstige Angaben
Sonstige Angaben
Die gezeigten Abbildungen wurden mithilfe künstlicher Intelligenz (KI) erstellt und dienen dem Schutz der Privatsphäre der Eigentümer sowie der reinen Veranschaulichung. Alle Maß- und Flächenangaben sind unverbindlich und können von den tatsächlichen Gegebenheiten abweichen.
Für weitere Informationen stehen wir Ihnen selbstverständlich jederzeit persönlich zur Verfügung.
Für weitere Informationen stehen wir Ihnen selbstverständlich jederzeit persönlich zur Verfügung.
Mehr anzeigen zum Thema Sonstige Angaben
Energieausweis
- Nutzungsart
- Wohnen
- wesentlicher Energieträger
- Gas
Ihr Ansprechpartner
Herr Antonio Pienitz
Wohnsitz LE GmbH
- Tel.:
- 034187085938
- E-Mail:
- mail@wohnsitz-le.de
Lauchstädter Str. 51
04229 Leipzig / Plagwitz