Mehr anzeigen zum Thema Ausstattung Beschreibung
Ausstattung Beschreibung
Ausstattung und Zusammenfassung
- Baujahr: 1930
- aufwändige Kernsanierung: 2018
- hochwertiger Korkboden, teilweise Fliesen
- besonders schöne Fliesen in Badezimmer und Gäste-WC
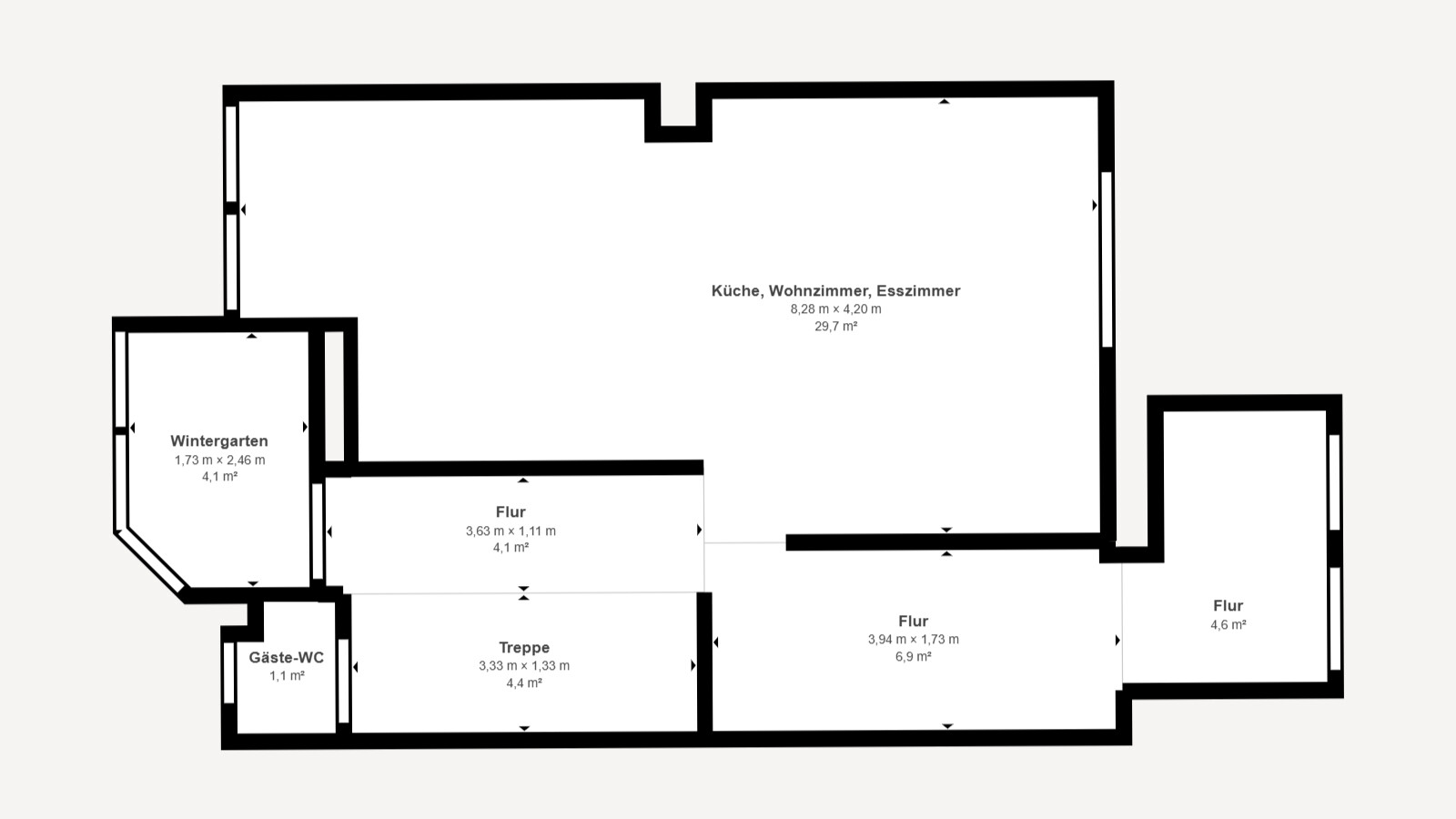
- 111 m² Wohnfläche
- 124 m² Gesamtfläche
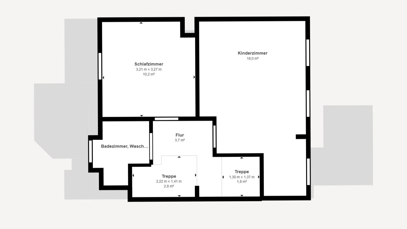
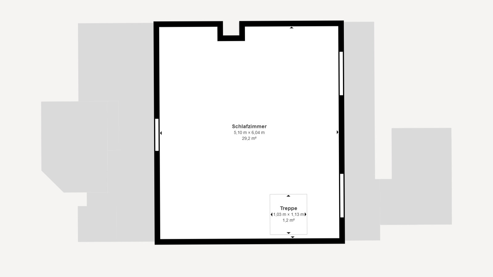
- 4 bis 5 Zimmer: zwei Etagen mit drei Zimmern zzgl. großem ausgebautem Dachstudio
- Terrasse
- Garage in der Nähe
- Gasheizung, 2019 verbaut
- trockener Keller
- Baujahr: 1930
- aufwändige Kernsanierung: 2018
- hochwertiger Korkboden, teilweise Fliesen
- besonders schöne Fliesen in Badezimmer und Gäste-WC
- 111 m² Wohnfläche
- 124 m² Gesamtfläche
- 4 bis 5 Zimmer: zwei Etagen mit drei Zimmern zzgl. großem ausgebautem Dachstudio
- Terrasse
- Garage in der Nähe
- Gasheizung, 2019 verbaut
- trockener Keller
Mehr anzeigen zum Thema Beschreibung
Beschreibung
Für Liebhaber von Komfort und klassisch schönem Wohngefühl. Wenn Sie die Vorteile einer eigenen Immobilie suchen, ohne viel Aufwand für Grundstückspflege u.ä., dann könnte dieses Haus für Sie perfekt sein. Hier finden Sie auf 3 Ebenen 4 bzw. 5 Wohnräume für Ihre Familie oder einen Haushalt mit homeoffices. Dieses komplett und sehr liebevoll sanierte Reihenhaus liegt in einer ruhigen und gepflegten Wohngegend von Leipzig. Im Ortsteil Lützschena. Es ist sehr gut saniert, so daß Sie direkt einziehen könnten. Ohne größere Investitionen.
Haus
Auf rund 124 m² Innenfläche entfaltet das Haus ein großzügiges Wohngefühl. Der Eingangsbereich mit praktischem Anbau schafft Platz für Garderobe und Alltagsorganisation und führt in den hellen Wohn- und Küchenbereich. Große Fenster auf Vorder- und Rückseite sorgen ganztägig für Licht, während die angrenzende Essnische den familiären Mittelpunkt bildet.
Im Obergeschoss erwarten Sie zwei Schlafzimmer sowie ein Tageslichtbad mit einer besonderen Ausstattung: einer Japanischen Badewanne, die perfekte Ruhe- und Entspannungsmomente ermöglicht. Das ausgebaute, gedämmte Dachgeschoss erweitert den Wohnraum um eine vielseitig nutzbare Ebene. Dieses große Dachgeschoß ist darauf vorbereitet, mit geringem Aufwand in zwei Zimmer aufgeteilt zu werden. Somit hat das Haus aktuell 4 Zimmer, könnte aber leicht auf 5 Zimmer umgewandelt werden.
Das Haus ist voll unterkellert und bietet großzügig funktionale Abstellflächen.
Mini- Grundstück
Statt auf den Balkon, lädt dieses Haus Sie auf seine private, Entspannungs- Terrasse ein. Grün und sichtgeschützt durch eine schöne große Hecke. Zu gemütlichen Auszeiten, morgendlichem Kaffee oder entspannten Lesestunden. Komplett pflegeleicht und ohne Aufwand. Dieses Konzept richtet sich an Käufer, die ein hausähnliches Wohngefühl wünschen, jedoch keine Zeit oder Lust auf Gartenarbeit haben. Für ein hübsches Hochbeet oder prächtige Topfpflanzen bietet der kleine Grundstücksanteil hinter dem Haus Gelegenheit. Dort ist auch zusätzlich Platz für das Abstellen von Fahrrädern oder Kinderwagen.
Modernisiert
Seit 2018 wurde das gesamte Gebäude umfassend modernisiert: Der Keller wurde mittels Horizontal- und Vertikalsperre fachgerecht trockengelegt. Elektrik und Wasserleitungen wurden erneuert. Es wurden Dämmung und moderne Dachflächenfenster eingebaut sowie die Bäder sehr geschmackvoll und komplett saniert. Es gibt feingespachtelte Wände, einen überarbeiteten Fassadenbereich sowie eine Gasheizung aus 2019. All diese Aufwertungen sorgen für Ihre langfristige Wohnqualität.
Zur Immobilie gehört zudem eine Garage nur wenige Schritte entfernt – ein geschätzter Komfort in dieser beliebten Wohnlage.
Die kleine, von einer Hecke eingefasste Sitzecke im Eingangsbereich ersetzt bewusst einen klassischen Garten und schafft einen pflegeleichten, privaten Außenplatz. Damit richtet sich das Haus besonders an Käufer, die den Komfort eines Hauses bevorzugen, aber keine Grünflächen oder Grundstückspflege wünschen.
Dieses Siedlungshaus bietet neuen Eigentümern die seltene Gelegenheit, ein sorgfältig modernisiertes Zuhause in einer angenehmen Nachbarschaft zu übernehmen.
Haus
Auf rund 124 m² Innenfläche entfaltet das Haus ein großzügiges Wohngefühl. Der Eingangsbereich mit praktischem Anbau schafft Platz für Garderobe und Alltagsorganisation und führt in den hellen Wohn- und Küchenbereich. Große Fenster auf Vorder- und Rückseite sorgen ganztägig für Licht, während die angrenzende Essnische den familiären Mittelpunkt bildet.
Im Obergeschoss erwarten Sie zwei Schlafzimmer sowie ein Tageslichtbad mit einer besonderen Ausstattung: einer Japanischen Badewanne, die perfekte Ruhe- und Entspannungsmomente ermöglicht. Das ausgebaute, gedämmte Dachgeschoss erweitert den Wohnraum um eine vielseitig nutzbare Ebene. Dieses große Dachgeschoß ist darauf vorbereitet, mit geringem Aufwand in zwei Zimmer aufgeteilt zu werden. Somit hat das Haus aktuell 4 Zimmer, könnte aber leicht auf 5 Zimmer umgewandelt werden.
Das Haus ist voll unterkellert und bietet großzügig funktionale Abstellflächen.
Mini- Grundstück
Statt auf den Balkon, lädt dieses Haus Sie auf seine private, Entspannungs- Terrasse ein. Grün und sichtgeschützt durch eine schöne große Hecke. Zu gemütlichen Auszeiten, morgendlichem Kaffee oder entspannten Lesestunden. Komplett pflegeleicht und ohne Aufwand. Dieses Konzept richtet sich an Käufer, die ein hausähnliches Wohngefühl wünschen, jedoch keine Zeit oder Lust auf Gartenarbeit haben. Für ein hübsches Hochbeet oder prächtige Topfpflanzen bietet der kleine Grundstücksanteil hinter dem Haus Gelegenheit. Dort ist auch zusätzlich Platz für das Abstellen von Fahrrädern oder Kinderwagen.
Modernisiert
Seit 2018 wurde das gesamte Gebäude umfassend modernisiert: Der Keller wurde mittels Horizontal- und Vertikalsperre fachgerecht trockengelegt. Elektrik und Wasserleitungen wurden erneuert. Es wurden Dämmung und moderne Dachflächenfenster eingebaut sowie die Bäder sehr geschmackvoll und komplett saniert. Es gibt feingespachtelte Wände, einen überarbeiteten Fassadenbereich sowie eine Gasheizung aus 2019. All diese Aufwertungen sorgen für Ihre langfristige Wohnqualität.
Zur Immobilie gehört zudem eine Garage nur wenige Schritte entfernt – ein geschätzter Komfort in dieser beliebten Wohnlage.
Die kleine, von einer Hecke eingefasste Sitzecke im Eingangsbereich ersetzt bewusst einen klassischen Garten und schafft einen pflegeleichten, privaten Außenplatz. Damit richtet sich das Haus besonders an Käufer, die den Komfort eines Hauses bevorzugen, aber keine Grünflächen oder Grundstückspflege wünschen.
Dieses Siedlungshaus bietet neuen Eigentümern die seltene Gelegenheit, ein sorgfältig modernisiertes Zuhause in einer angenehmen Nachbarschaft zu übernehmen.
Mehr anzeigen zum Thema Lage
Lage
Das hochwertige Haus befindet sich im idyllischen Ortsteil Lützschena im Nordwesten Leipzigs. Hier finden Sie die perfekte Symbiose zwischen ruhig grüner Umgebung, guten und nahe gelegenen Einkaufsmöglichkeiten sowie hervorragender Anbindung an die Leipziger Innenstadt. Das soziale Umfeld in Lützschena gilt als ruhig, gepflegt und sehr angenehm - ein gewachsenes Wohngebiet mit respektvollem Miteinander. Somit ist die Lage insbesondere auch für Familien sehr gut geeignet.
Lützschena ist für seine Nähe zum berühmten Leipziger Auwald bekannt und somit ein attraktiver Wohnort für Naturliebhaber und Familien, der zu ausgedehnten Spaziergängen und Radtouren einlädt. Zudem ist auch der Störmthaler See ist auf kurzem Weg erreichbar und ein beliebtes Ziel für Badeausflüge, Tauchhobbies und andere Freizeitaktivitäten.
Die Verkehrsanbindung ist bestens, mit schnellen Verbindungen zur Innenstadt und zum Leipziger Ring. Die öffentlichen Verkehrsmittel, wie Straßenbahn und S- Bahn, sind fußläufig erreichbar. Auch mit dem Auto ist man in wenigen Augenblicken auf den wichtigen Verkehrsachsen der Stadt.
In Lützschena selbst finden sich Supermärkte, Schulen und andere Einrichtungen des täglichen Bedarfs. Der lebendige Stadtteil bietet zudem eine gute Mischung aus ländlichem Charme und urbaner Nähe, ideal für alle, die ein ruhiges Zuhause suchen, ohne auf die Vorteile der Stadt verzichten zu müssen.
Lützschena ist für seine Nähe zum berühmten Leipziger Auwald bekannt und somit ein attraktiver Wohnort für Naturliebhaber und Familien, der zu ausgedehnten Spaziergängen und Radtouren einlädt. Zudem ist auch der Störmthaler See ist auf kurzem Weg erreichbar und ein beliebtes Ziel für Badeausflüge, Tauchhobbies und andere Freizeitaktivitäten.
Die Verkehrsanbindung ist bestens, mit schnellen Verbindungen zur Innenstadt und zum Leipziger Ring. Die öffentlichen Verkehrsmittel, wie Straßenbahn und S- Bahn, sind fußläufig erreichbar. Auch mit dem Auto ist man in wenigen Augenblicken auf den wichtigen Verkehrsachsen der Stadt.
In Lützschena selbst finden sich Supermärkte, Schulen und andere Einrichtungen des täglichen Bedarfs. Der lebendige Stadtteil bietet zudem eine gute Mischung aus ländlichem Charme und urbaner Nähe, ideal für alle, die ein ruhiges Zuhause suchen, ohne auf die Vorteile der Stadt verzichten zu müssen.
Mehr anzeigen zum Thema Sonstige Angaben
Sonstige Angaben
Energetisch hervorragend
Wegen der Anordnung als Reihenhaus profitieren Sie von der sehr günstigen Energiebilanz durch die "Dämmung" aufgrund benachbarter Häuser.
Hinweis: Die angegebenen Wohnflächen wurden vorläufig ermittelt, kleinere Abweichungen sind möglich. Eine genauere Ermittlung folgt.
Wegen der Anordnung als Reihenhaus profitieren Sie von der sehr günstigen Energiebilanz durch die "Dämmung" aufgrund benachbarter Häuser.
Hinweis: Die angegebenen Wohnflächen wurden vorläufig ermittelt, kleinere Abweichungen sind möglich. Eine genauere Ermittlung folgt.
Mehr anzeigen zum Thema Sonstige Angaben
Energieausweis
- Nutzungsart
- Wohnen
Ihre Ansprechpartnerin
Frau Dorothee Stüker
Wohnsitz LE GmbH
- Tel.:
- +49 341 87085938
- E-Mail:
- ds@wohnsitz-le.de
Lauchstädter Str. 51
04229 Leipzig